Italiano
180.000 €

CASA INDIPENDENTE CON 11000 MQ DI TERRENO

Casa singola in vendita • Tarzo (Resera) - via Reseretta, 134
TARZO – Località Reseretta
Casa collinare immersa nella natura con terreno e vista panoramica

PREZZO TRATTABILE !

In una delle zone più autentiche e silenziose delle colline trevigiane, all’interno del patrimonio UNESCO, proponiamo una casa indipendente dal grande potenziale, circondata da oltre 11.000 mq di terreno privato tra prato e bosco. Un luogo che regala privacy, tranquillità e un contatto diretto con la natura, pur restando a pochi minuti dal centro di Tarzo e dai servizi essenziali.

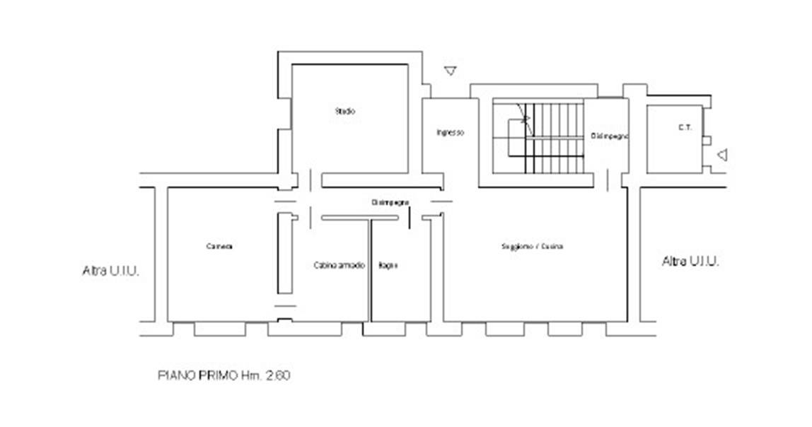
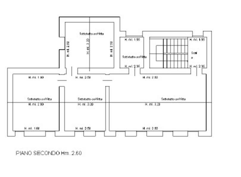
L’immobile si sviluppa su tre livelli ed è composto da due unità abitative: una già abitabile con semplici lavori di aggiornamento, l’altra da completare, per chi desidera personalizzare gli spazi secondo le proprie esigenze. L' abitazione è adatta per una famiglia o da condividere con altri, trasformandola magari in un’attività ricettiva: B&B, affittacamere, casa vacanze o piccolo agriturismo.

Questa proprietà è pensata per chi sogna un ritorno alla terra, per chi immagina una nuova vita tra i colli, per chi desidera ospitare e accogliere, per chi cerca una casa dove i bambini possano correre liberi o dove ritirarsi nei fine settimana lontano dal rumore della città.

L’ampio terreno circostante offre la possibilità di realizzare orti, spazi esterni per gli ospiti, zone relax o attività legate al turismo rurale.

Contattaci per chiederci ulteriori informazioni e dettagli sulle potenzialità di questo immobile! tel. 339-6464452
PREZZO TRATTABILE !

Caratteristiche principali
Codice
V717IM
Città
Tarzo (Resera)
Categoria
Casa singola
Prezzo
180.000 €
Locali
6
Camere
4
Mq
285
Mq Giardino
11200
Classe energetica
F
384,28 kWh/m²a
Posizione
Collina
Panorama
Vista Aperta
Orientamento
Nord Ovest Sud Est
Lati Liberi
4
Giardino
Privato
Tipo Soggiorno
Soggiorno
Tipo Cucina
Abitabile

Accessori: Passaggio Automobilistico, Passaggio Pedonale

Mappa
via Reseretta 134, Tarzo (TV)
Condividi su
Cookie preference